Značkovač Accura

Značkovač Accura
search
  • Značkovač Accura
  • Značkovač Accura
  • Značkovač Accura
  • Značkovač Accura
  • Značkovač Accura
  • Značkovač Accura
  • Značkovač Accura
  • Značkovač Accura

Více informací

23680
Odesíláme do 4-14 dnů
46 Kč S DPH 38,33 Kč (bez DPH)
Počet
externí sklad



 

Doručení zdarma při nákupu od 3999Kč

 

Odborné poradenství.

 

Online platba kartou.

 

Registrace pro truhláře.

Popis

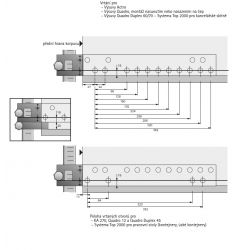
Použít s lištou Accura.

Zakoupit samostatně.

Recenze obchodu

Jana T.
26.04.2026
5.0 5.0 5.0 5.0 5.0
Celkový názor:
Velice solidní a spolehlivá firma, která při komunikaci nepostrádá vtipnost. :D) Jsme maximálně spokojeni jak s cenou, tak s kvalitou a také i s komunikací.
Pavel H.
03.04.2026
5.0 5.0 5.0 5.0 5.0
Vyhody:
Velký výběr zboží Dobré ceny Rychle dodání zboží
Slabiny:
Nic
Bohumil K.
25.03.2026
5.0 5.0 5.0 5.0 5.0
Vyhody:
Ok Ok

Zdroj recenzí pochází z nákupního portálu Heureka

Všechna hodnocení